Попереднє замовлення
id товару:
66949
Термін виготовлення: 27 днів

НАЦ. КЕШБЕК 10%
Rw-value
0.68
Назовні:
Білий (RAL 9016)
Всередину:
Білий (RAL 9016)
Технічні характеристики
Тип:
Вхідні двері
Форма конструкції:
З лівою бічною панеллю
Відкривання:
Поворот
Rw-value:
0.68 m²K/W
Розмір (ширина x висота):
1400x2100 мм
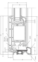
Поперечні перерізи

Фото


+ 3 фотографій
Відгуки та запитання клієнтів

Попереднє замовлення
id товару:
66949
Залиште відгук
Термін виготовлення: 27 днів
1 027 EUR
698.47 EUR
1. Основні параметри
Розмір (ширина x висота):
Відкривання:
Комплектація:
Колір ззовні:
Колір зсередини:
Склопакет:
2. Аксесуари
Пластина:
Виступаючі пороги:
Дверна нажимна ручка:
Дверні петлі:
Звичайні замки:
Інше:
3. Послуги
+ 15.41 EUR
0 Відгуків